Теплообменник - ТПР-47 - Челябинск

ТПР-47

ТПР-47


заполнить опросный лист
Температура рабочих сред, ˚С
-10+150
Рабочее давление, МПа, не более
1.6
Условный диаметр патрубков (фланцев) Ду, мм
100
Площадь поверхности теплообмена теплообменника, м2
9 - 99
Материал уплотнений
EPDM
Материал пластин
AISI 316L
Размер присоединения
DN 100
Тип присоединения
Фланцевое Ру 1,6 ГОСТ 12820
Площадь поверхности теплообмена одной пластины, м2
0,5
Среда
Вода / Гликолевый раствор до 50%
Минимальная рабочая температура, 0С
-10
Максимальная рабочая температура, 0С
150
Условное давление Ру, МПа
1,6
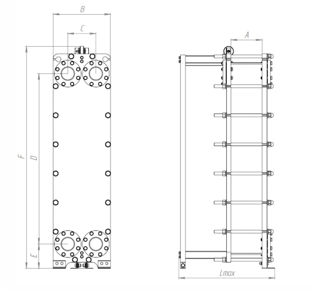
47_2.jpg        


Кол-во пластин, шт.

Габаритные размеры, мм

Площадь теплообмена, м2

Масса* нетто, кг

А

В

С

D

E

F

Lmax

2 - 40

3,05хn

460

225

1365

196

1780

771

0 - 19

512 - 588

41 - 60

3,05хn

460

225

1365

196

1780

871

19,5 - 29

596 - 634

61 - 80

3,05хn

460

225

1365

196

1780

971

29,5 - 39

643 - 681

81 - 100

3,05хn

460

225

1365

196

1780

1071

39,5 - 49

689 - 727

101 - 120

3,05хn

460

225

1365

196

1780

1171

49,5 - 59

736 - 774

121 - 140

3,05хn

460

225

1365

196

1780

1271

59,5 - 69

782 - 820

141 - 170

3,05хn

460

225

1365

196

1780

1421

69,5 - 84

832 - 890

171 - 200

3,05хn

460

225

1365

196

1780

1571

84,5 - 99

902 - 960


порты 1-ходовой.jpg


Обозначение порта

Присоединительный размер

Назначение

Р1

Фланец Ду 100 ГОСТ12820

Вход греющей среды (Т1)

Р2

Фланец Ду 100 ГОСТ12820

Выход греющей среды (Т2)

R1

Фланец Ду 100 ГОСТ12820

Выход нагреваемой среды (Т11)

R2

Фланец Ду 100 ГОСТ12820

Вход нагреваемой среды (Т21)


n – Количество пластин, шт.

* Более точные массы указаны в паспорте теплообменника и расчетном листе.


47_1.jpg       


Кол-во пластин, шт.

Габаритные размеры, мм

Площадь теплообмена, м2

Масса* нетто, кг

А

В

С

D

E

F

Lmax

2 - 40

3,05хn

460

225

1365

196

1780

771

0 - 19

512 - 588

41 - 60

3,05хn

460

225

1365

196

1780

871

19,5 - 29

596 - 634

61 - 80

3,05хn

460

225

1365

196

1780

971

29,5 - 39

643 - 681

81 - 100

3,05хn

460

225

1365

196

1780

1071

39,5 - 49

689 - 727

101 - 120

3,05хn

460

225

1365

196

1780

1171

49,5 - 59

736 - 774

121 - 140

3,05хn

460

225

1365

196

1780

1271

59,5 - 69

782 - 820

141 - 170

3,05хn

460

225

1365

196

1780

1421

69,5 - 84

832 - 890

171 - 200

3,05хn

460

225

1365

196

1780

1571

84,5 - 99

902 - 960



порты 2-ходовой.jpg
 

Обозначение порта

Присоединительный размер

Назначение

Р1

Фланец Ду 100 ГОСТ12820

Вход греющей среды (Т1)

Р2

Фланец Ду 100 ГОСТ12820

Вход греющей среды (Т2)

R1

Фланец Ду 100 ГОСТ12820

Выход нагреваемой среды (Т11)

R2

Фланец Ду 100 ГОСТ12820

Вход нагреваемой среды (Т21)

R3

Фланец Ду 100 ГОСТ12820
Вход нагреваемой среды (В1)

P3

Фланец Ду 100 ГОСТ12820
Выход греющей среды (Т2общ.)
     

 n – Количество пластин, шт.

* Более точные массы указаны в паспорте теплообменника и расчетном листе.


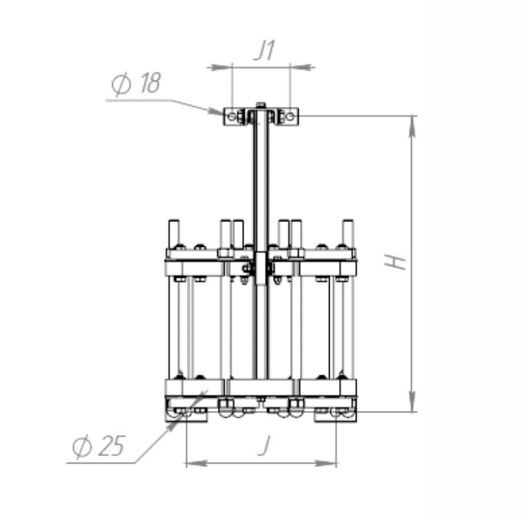
47_м1.jpg

Кол-во пластин, шт.

Габаритные размеры, мм

J

J1

H

2 - 40

360

140

712,5

41 - 60

360

140

812,5

61 - 80

360

140

912,5

81 - 100

360

140

1012,5

101 - 120

360

140

1112,5

121 - 140

360

140

1212,5

141 - 170

360

140

1362,5

171 - 200

360

140

1512,5




Вернуться в раздел